-
閥體
閥體為精密鑄造閥體,材質WCB達標、外觀精細
-
設計
閥軸與閥板一體式設計,啟閉靈活、密封可靠
-
耐腐蝕
閥門各部件全部包襯氟塑料,確保耐腐蝕性
-
多種選擇
襯里材料有多種選擇,可適用各種介質
-
噴涂
外觀采用環氧樹脂噴涂,噴涂厚度達到250μm
-
檢測
每臺閥門出廠前均按標準試壓檢測
-
-
-
產品優點
產品介紹
H44F46型襯氟止回閥,是一種自動防腐閥門,其通過介質自身流動驅動閥瓣啟閉,阻止流體逆向流動,閥體采用襯氟工藝增強耐腐蝕性能,通過閥板旋啟運動實現密封。廣泛應用于石油、化工、電站、制藥、冶金等多種行業。
產品參數
| 名稱 | 設計制造 | 結構長度 | 法蘭連接 | 檢驗試壓 |
| 參照標準 | HG/T 3704 | GB/T 12221 | HG/T 20592 | GB/T 13927 |
| 名稱 | 1-閥體 | 2-閥瓣 |
| 材質及說明 | WCB+F46/PFA CF8+F46/PFA |
WCB+F46/PFA CF8+F46/PFA |
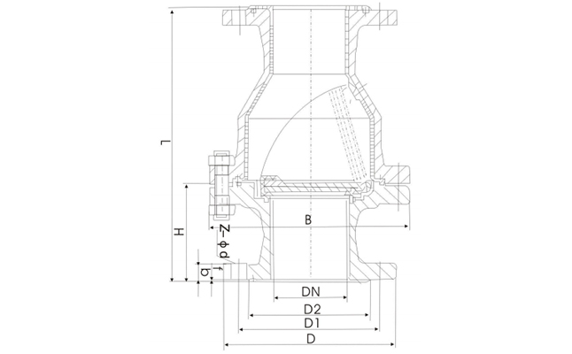
| SIZE | PN10 | |||||
| DN | NPS | L | φD | φD1 | f | Z-d |
| 25 | 1'' | 160 | 115 | 85 | 3 | 4-14 |
| 32 | 1 1/4'' | 180 | 140 | 100 | 3 | 4-18 |
| 40 | 1 1/2'' | 200 | 150 | 110 | 3 | 4-18 |
| 50 | 2'' | 230 | 165 | 125 | 3 | 4-18 |
| 65 | 2 1/2'' | 290 | 185 | 145 | 3 | 8-18 |
| 80 | 3'' | 310 | 200 | 160 | 3 | 8-18 |
| 100 | 4'' | 350 | 220 | 180 | 3 | 8-18 |
| 125 | 5'' | 400 | 250 | 210 | 3 | 8-18 |
| 150 | 6'' | 480 | 285 | 240 | 3 | 8-22 |
| 200 | 8'' | 500 | 340 | 295 | 3 | 8-22 |
| 250 | 10'' | 550 | 395 | 350 | 4 | 12-22 |
| 300 | 12'' | 620 | 445 | 400 | 4 | 12-22 |
語言:簡體中文
English
Русский
簡體中文












