雙法蘭蝶閥的閥體兩端自帶兩片法蘭,其安裝拆卸會更加的方便和快捷,雙法蘭蝶閥也就是我們說的法蘭式蝶閥,法蘭式蝶閥按照密封面材質可以分為軟密封法蘭蝶閥和硬密封法蘭蝶閥。常說的法蘭蝶閥尺寸,通常指的是蝶閥的結構長度,也就是兩片法蘭直接的距離,只有這個參數選擇正確了,才能把閥門安裝上管道。80-600口徑的法蘭蝶閥,是日常詢價中比較常見的,本篇文章就為您介紹dn80-dn600雙法蘭蝶閥尺寸。
上面有提到法蘭式蝶閥分為軟密封和硬密封,但是他們的結構長度是一樣的。常見的法蘭式蝶閥型號有:D41X、D341X、D342X、D343H。D373W.
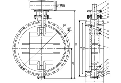
以般德閥門雙偏心蝶閥D342X-16Q為例,dn80-dn600口徑的結構尺寸為:
| DN | NPT | L |
| 80 | 3” | 114 |
| 100 | 4'' | 127 |
| 125 | 5'' | 140 |
| 150 | 6'' | 140 |
| 200 | 8'' | 152 |
| 250 | 10'' | 165 |
| 300 | 12'' | 178 |
| 350 | 14'' | 190 |
| 400 | 16'' | 216 |
| 450 | 18'' | 222 |
| 500 | 20'' | 229 |
| 600 | 24'' | 267 |
法蘭式蝶閥主要用于工業生產管線之中,它的作用主要是切斷管路中介質的流通,或調節管路中的介質流量的大小。法蘭式蝶閥廣泛應用于水利工程、水處理、石油、化工、城市供熱等一般工業中的生產管線上,還能在熱電站的泠凝器及冷卻水系統上使用。法蘭式蝶閥特別適合做成大口徑的閥門,其在大口徑的調節領域有廣泛應用,當法蘭式蝶閥完全打開時流阻較小,當蝶板開啟角度在約15-70°之間時,法蘭式蝶閥可以非常靈敏的控制介質流量。
般德閥門,專業生產各種類型的蝶閥產品,有對夾式、法蘭式、軟密封、硬密封等多種形式可選,歡迎您來電洽談合作,熱線13821179269。













